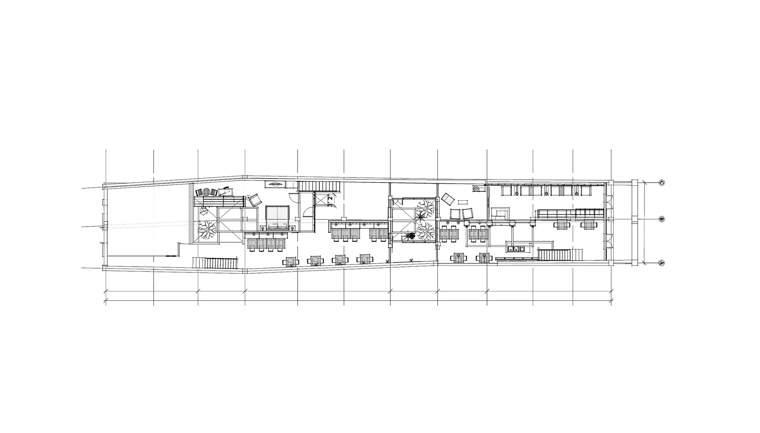
The project is situated in a converted ubiquitous shophouse located in the UNESCO core zone. The interior decor is an eclectic heritage statement, balancing modern elements with traditional and vintage items with a personalized touch. The design intentionally brings together a collection of seemingly unrelated aesthetics and vintage pieces, giving the space a unique and curated feel.

Bold accents colors and striking visual elements punctuates the tight interior spaces. Against the backdrop of rustic natural materials like wood, this approach avoids a strict adherence to one specific era, instead creating a comfortable and unique environment that blends the old and the new while adding warmth and texture.

" Creativity is allowing yourself to make mistakes. Art is knowing which ones to keep",  Scott Adams.

THE FINE LINE BETWEEN FORMULAIC AND MADNESS IS INGENUITY.

Previous
Previous

ELEGANT MAKEOVER

Next
Next

MODERN HYGGE